01.概述
有压管道输水系统中的水锤防护问题是水利水务行业的痛点问题,而水锤现象在有压输水管道系统中是必然存在的,只要输水系统中的介质发生流态变化,就会发生水锤升压。当水锤产生后,如何将水锤的影响降低以避免管道出现爆管等事故和如何将水锤波对管道设备的显性与隐性破坏降低等属于水锤后保护措施。水锤后保护措施是行业内不断研究的关键课题,已经提出了各种防护设备并加以实施。目前主要的技术路线包括:(1)通过泄放方式削减水锤峰值;(2)通过空气吸纳水锤;(3)通过缓冲降低水锤峰值。其中,通过空气吸纳水锤和通过缓冲降低水锤的解决方案在实际应用中取得了明显效果;空气吸纳水锤的主要技术手段包含水锤消除罐、防水锤空气阀、调压塔等,缓冲降低水锤的主要技术手段有多功能止回阀、液控止回阀等。这些技术手段和设备在水利水务行业被大量应用,其功能也被用户所认同。但通过泄放方式削减水锤峰值的技术手段,如泄压阀、水击泄放阀等,由于实际应用效果较为有限,其相关技术及设备处于边缘化地位。究其原因是由于通过泄放方式削减水锤峰值在实际应用中的效果并不明显,经实际项目应用验证,大部分工况发生了水锤升压甚至水锤破坏,而泄放设备并没有发挥作用,甚至不动作;久而久之,泄压设备的应用逐渐减少,呈现出逐渐被取消的趋势。
02.水锤后防护设备介绍
目前在输水管线中应用的水锤后保护设备历经了最早模拟爆管现象的爆破片,到超压泄压阀、水锤泄放阀、多功能止回阀,再到水锤消除罐、调压塔、防水锤空气阀等演变过程,且这些设备的功能各有缺陷,因而导致了在水锤后防护技术方面的落后现状。本文以超压泄压设备为研究重点,探讨了水锤后保护的机理与当前技术存在的问题。下面从各类设备水锤防护与现存问题的角度,分别介绍了不同设备的特性。
(1)爆破片
爆破片是一种原始的管道超压泄压装置,作用原理是人为在管道中设置一个薄弱点,当水锤升压来临,此处薄弱点呈现爆管现象,直接爆开,泄放管道超压,从而有效保护管道其他设备。该方法理论上的超压泄压能力是可以完全设定的,具有较强的超压泄压能力;但该方法存在两个问题,且在实际应用中难以解决。其一,在设计爆破片时,需精确计算爆破片的超压泄压临界值,该临界值的计算涉及到爆破片的材料力学性能,而材料力学性能与材料尺寸、材料金相组织结构、材料制成工艺、热处理等各种环节息息相关,同时随着时间变化,材料的强度因腐蚀、应力等因素会持续降低,因此要精确计算出爆破片的实际爆破压力难度较大,且出现偏差的概率也较大;其二,爆破片一旦超压爆破便直接泄压,这固然消除了水锤,但爆破片爆破后会不断地高速泄水,无法在短时间内止水,面临着极大的水资源浪费,且影响管道恢复再次正常运行。鉴于此,目前采用爆破片的水锤防护方法基本被淘汰。国外某些机构近几年对非刚性材料在感应水锤方面做了一些理论性研究,分析了非刚性材料(如工程塑料)在感应水锤冲击力时的失效过程,对于水锤后保护起到一定的启发作用。
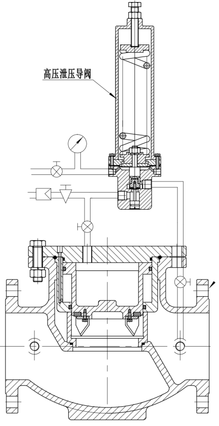
(2)超压泄压阀
超压泄压阀是一种常用的水锤后防护设备,档感应到管道超压,自动开启阀门泄压泄水,当压力恢复后,自动关闭阀门,停止泄水。超压泄压阀的工作原理是通过泄压导阀感应管道压力,当管道压力达到或超过设定压力值时便会触发设定条件,阀门在超压水力作用下自动开启,实现泄压泄水,其机械结构示意图见图1。该产品在实际应用中,在稳态压力升值工况下具有较好的防护效果,而在过渡过程中,即瞬态压力升值时,基本无任何防护能力。究其原因,在于过渡过程的水锤压力升值是一种压力瞬变现象,时间极短,该设备无法在瞬变时间内捕捉水锤现象;即使成功捕捉到压力瞬变,当设备开始反馈实施泄压动作时,水锤波已经传递到其他位置,超压泄压阀的动作因无足够的超压水力驱动而提前终止动作。因此,当前的超压泄压阀实际工作表现为:稳态压力升高时可自动开启泄压,而过渡过程的水锤升压时阀门不动作,这是该设备被逐渐淘汰的根本原因。

图1 超压泄压阀结构图
(3)水锤泄放阀
水锤泄放阀是一种比超压泄压阀更为先进的设备,其先进之处是该设备针在对水锤机理进行深度研究后,强化了对水锤升压的反馈,设备动作灵敏度和泄压动作更快。如图2所示,该阀门强化了水锤感应和反馈泄放灵敏度,最优秀的水锤泄放阀可在感应到水锤升压后的0.3秒内做出反馈动作。水锤泄放阀是在超压泄压阀基础上进行了优化改进,使水锤泄放阀在一段时间内被大量应用于压力管道的水锤防护;但随着该设备的投入使用,其应用效果也存在一定限制。例如,在扬水系统中,安装于泵站的水锤泄放阀在发生停泵水锤时,发挥作用的结果具有概率性,其概率不超过10%;在重力流系统中,安装于管线末端的水锤泄放阀在发生关阀水锤时起到较大作用,其概率超过90%。因此,该设备在当前压力输水管道中被大量应用于重力流输水系统的末端,而扬水系统的泵站则被边缘化。

图2 水锤泄放阀结构图
以上三种水锤后防护设备的水锤防护机理均通过感应水锤→水锤升压作用力驱动泄压动作的处理方式完成泄放水锤升压的目标。图3是停泵水锤的典型表现,从图中实时监测到的水锤波现象可以看出,水锤升值在极短时间内发生,波峰持续时间不超过0.3秒;而水锤波在管道中以音速传播,在水锤防护设备所处节点位置,若设备未消除其中一个水锤波,则这个水锤波将会在管道中以音速在极短时间内离开该处节点,并在管道中循环震荡,对管道造成破坏。水锤波通过破坏设备的方式来消耗动能,并在消耗动能的过程中逐步衰减水锤波强度。

图3 停泵水锤波曲线图
总而言之,水锤防护保护设备需做到以下两点方可起到消除水锤的作用:(1)必须具有捕捉水锤的能力,即需要在极短时间内感应到水锤并做出反馈;(2)必须在捕捉到水锤后迅速做出水锤泄放动作,且该水锤泄放动作不是通过水锤升压效应驱动的,即其驱动力与水锤升压无关。
03.优化后水锤防护解决方案
基于上述水锤后防护设备的缺陷和水锤波原理,本文提出的解决方案应回避现有设备的缺陷,并总结现有水锤后防护措施的优劣,在感应水锤和设备驱动两个维度进行深入研究。
首先,对于如何感应水锤,目前的主流方法包括机械式感应和高频压力监测。前者通过力学原理,而后者则利用信息化手段。目前在通过机械原理感应水锤的响应速度的设备中,水击泄放阀最强,可达到0.3秒内响应,而高频压力监测的响应速率最高可达到10 kHZ以上。1000 HZ是常规监测手段,对比二者可知,其响应速率不在一个数量级。采用高频压力监测技术可以完整捕捉水锤波,通过响应算法对水锤波现象进行重新定义,可以精准判断水锤发生的时间点,从而为水锤防护措施的响应动作提供精准地时间参数。该技术解决了现有水锤波感应技术存在的感应错误、感应延迟和不感应等问题。
当设备捕捉到水锤后,需要快速执行泄压动作,且在水锤升压通过泄放的方式被削减峰值后,将设备复位。现有设备的水锤泄放动作是通过水锤升压形成的流体作用力直接对设备产生作用,从而驱动设备工作;而这种直接作用因水锤波的波动震荡特性而产生跳动性驱动力,进而导致设备发生频跳现象,无法一次性完全开启泄压,该频跳现象在实际项目应用中已被证实。设备感应到水锤升压便开始动作,但不能形成完整的泄压开启,泄压能力有限。
因此,通过高频压力监测获得水锤升压信号,如果不考虑水锤升压的作用力,而是选择其他驱动方式来快速驱动设备以形成泄压效果,就可以解决以上因频跳现象而产生的设备无法完全开启泄压的问题。将设备通过集成的测控终端进行智能化控制,综合电动、气动、液压等多种控制方式直接驱动设备开启泄压,此时的时间差仅为高频压力监测+终端逻辑计算判定+驱动指令的总计时间,理论上可以在0.01秒内完成。该技术特征可满足目前已知所有输水项目中水锤泄放的需求。
04.新技术可行性
为证明新技术是否具有实际可行性,可以从技术特征、实施方法、边界条件等方面进行解析论证。
(1)技术特征
新技术是将信息化、智能化与机械结构相结合。其中,高频压力监测技术接近成熟,高频压力变送器最高采集频次达到20 kHZ,数据与终端的通信采用有线方式,基本无延时。但其目前主要的技术瓶颈是测控终端与传感器之间的数据互通与数据处理,该技术的突破存在一定难度;其次,终端的反馈速率体现在逻辑计算与判定的处理速率,若该环节算法简洁,且数据冗余处理得当,则不会成为技术瓶颈;最关键的是驱动部分,采用何种方式驱动设备快速开启泄压需要慎重选择,以达到预期效果,该部分技术的关键点是需要通过反复试验测试而确定。
(2)实施方法
该技术为组合技术,包含了水锤防护设备机械技术、水锤感知技术、水锤分析技术和自控技术等,需对以上领域的技术进行跨界融合创新,并对创新方法进行多次水锤试验,在试验数据的论证下选择最优解。基于以上理念,该方法从技术原理上是可行的。
(3)边界条件
边界条件包含两种,即技术方案与设备群自身的技术边界,以及应用工况的应用边界。其中,设备的技术边界包括机械设备、感知设备、信息化设备的自身条件约束;从这三种技术的应用现状来看,技术水平完全可以满足水锤后防护所需的性能指标。应用边界则需要项目管理方给予支持,主要表现在电力供应、通信环境以及清晰的工况信息支持。
05.结语
随着行业对水锤现象的不断深入研究以及在实际应用中的不断摸索前进,水锤防护技术及设备得到了快速升级。从最初的稳态超压泄压到快速响应泄压,再到意识到水锤波的存在,水锤后保护技术手段在不断地进步。若要解决水锤安全问题,所使用的技术方案应符合水锤波的特征,即水锤波的升压周期持续时间极短和快速传递的特性,需在捕捉水锤波和快速响应两方面进行深入研究。本文的技术方案是基于传统机械结构领域,将机械结构技术与自动化、信息化技术相结合,采用高频监测与自动化反馈方法达到精准捕捉水锤升压与快速响应泄压的目的。
随着智慧水利水务的持续发展,以及物联网、大数据、人工智能等技术的不断迭代升级,传统输水行业的技术迎来了巨大变革。在未来,关于输水系统水锤安全防护技术的创新主要依托于机械结构、水力学基础、智能化、信息化等技术的结合,并提出一个全新的综合解决方案。