专利号:CN201810687681.1
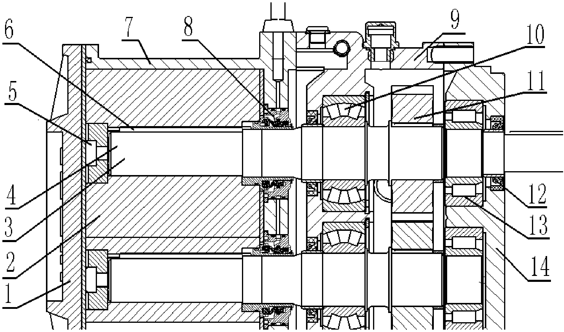
摘要:本发明涉及大流量及大功率凸轮泵技术领域,尤其是涉及一种大功率低脉动凸轮转子泵。其特点是包括设置在腔体内的两个相同的转子,转子通过键槽周向固定安装在转轴上,转子通过锁紧螺母和锁紧块轴向固定转轴上,腔体侧面对应转子设置有泵盖;所述的转子与腔体之间设置有0~0.2mm的间隙,转轴通过双列圆锥滚子轴承和圆柱滚子轴承固定在齿轮箱体上,两个转轴通过两个同步齿轮的啮合以相同转速转动,两个转子间设置有0.4mm的间隙,齿轮箱体侧面设置齿轮箱盖,转轴与腔体相接处设置机械密封机构,转轴与齿轮箱盖相接处设置橡胶油封。其设备的运行稳定;腔壁型线采用渐变线主要是优化泵体内部的流体的流动,很大程度上减轻流体的脉动现象,降低振动噪声。
